raumfindung architekten eth bsa sia

Projekte Raumfindung Architekten

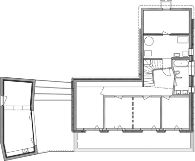
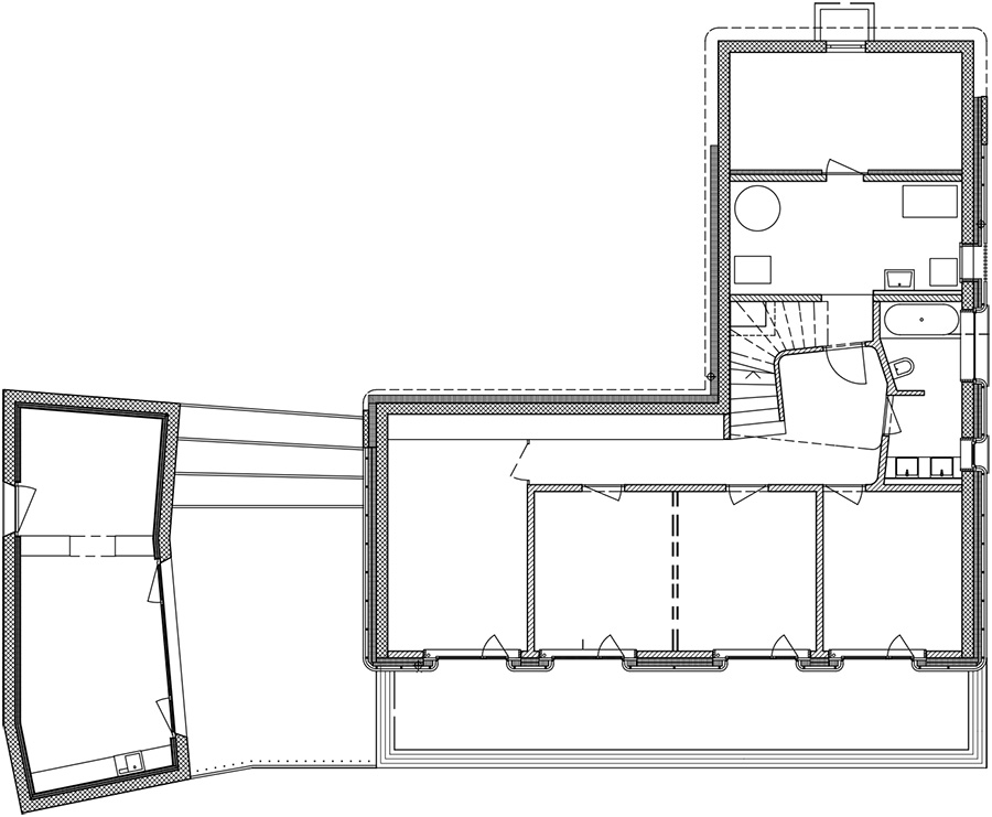
Holzhaus am Waldrand
Wohnen, Bauten

Beschrieb

Bauherr: Privat
Status: Realisiert
Baukosten: 1.0 Mio
Auszeichnung: Prix Lignum 2009
Jahr: 2007
Art: Wohnen
Standort: Wolfhausen ZH
Planung und Bau: 2005 - 2007
Fertigstellung: 2007

Das Holzhaus am Waldrand findet seine Identität zwischen Weilerkern und Wald. Während die konsequente Materialisierung und die Detaillierung der Fenster von heutiger zeitgenössischer Baukonstruktion zeugen, nimmt die gehöftartige Haustypologie das vorgefundene Thema im Weilerkern von Oberwolfhausen auf. Das Haus wird durch das Garderobenzimmer aus Lärchenholz betreten. Durch ein Innenfenster öffnet sich der Blick auf das Panoramafenster des Hauptwohnraumes mit Aussicht auf die Glarner Alpen.

Gelebt wird mit Weitblick im Obergeschoss, die Schlafzimmer befinden sich im Gartengeschoss. Das raue Holzkleid schützt das Wohnhaus sinnbildlich wie die Rinde den Baum. Das günstige Ausgangsmaterial erlaubt trotz begrenztem Kostenspielraum eine sorgfälltige konstruktive Ausbildung der Schlüsseldetails. Die Loggia bietet der Familie ein Aussenzimmer, in dem die Schiebeläden abwechlungsreiche Licht- und Schattenspiele erzeugen. Die feineren inneren Holztäfer und das raue Holzkleid treffen zusammen.

11.09.2020

raumfinder im gleichen Boot - Sommerfest auf der Lützelau

Als Abschluss des Sommers konnten wir unsere Teamfähigkeit kompetitiv im Drachenboot beweisen. Motiviert und im Gleichtakt paddelten die Teams um den knappen Sieg. Im Anschluss erwartete uns auf der Lützelau ein wohlverdientes BBQ unter freiem Himmel, dank Spätsommer bei idealem Wetter und hervorragender Stimmung. Ein Dank an das gesamte Team und PartnerInnen.

14.08.2019

Sommerabend auf der Insel Lützelau

Nach mehreren Wettbewerbsabgaben geniessen die Raumfinder einen Abend auf der Insel Lützelau, feiern die geglückte Teamarbeit und geniessen einen wunderschönen Spätsommerabend mit abschliessender Bootsfahrt.

11.09.2017

Büroreise Lausanne

Die diesjährige Büroreise führte uns in die Romandie. Französischkenntnisse wurden aufgefrischt, Lausanne erkundet und die Weinberge von Lavaux durchwandert.

21.09.2018

Büroreise Vorarlberg

Während zwei Tagen haben die Raumfinder die Vorarlberger Wälder erkundet und sich von der weiten Landschaft und vielfältigen Holzbaukunst inspirieren lassen.

16.02.2019

Büroskitag Chäserrugg

Bei viel Sonnenschein und tollen Schneeverhältnissen haben sich die Raumfinder ins Toggenburg begeben und auf dem Chäserrugg einen gelungenen Skitag verbracht. Beim gemeinsamen Mittagessen bot sich Gelegenheit das Gipfelrestaurant von Herzog & de Meuron zu bestaunen.

09.05.2019

Werkbericht 4

Mit der vierten Auflage des Werksberichts geben wir wieder Einblick in unser Schaffen mit einer Auswahl von Wettbewerben, erstellten Bauten sowie laufenden Baustellen der vergangenen zwei Jahre von 2017-2019. Bestellungen sind ab sofort möglich. 

20.08.2018

Werkdokumentation 2018

Die Werkdokumentation zeigt die Planungs- und Ausführungsarbeiten der letzten zehn Jahre auf. 17 laufende und realisierte Projekte werden darin vorgestellt. 

25.06.2019

Werkdokumentation 2019

Die Werkdokumentation gibt einen Überblick über die Planungs- und Ausführungsarbeiten der letzten zwölf Jahre. Eine Auswahl von 11 laufenden und 12 realisierten Projekten werden darin vorgestellt. 

23.12.2016

Büroausflug Uzwil und Arbon

Der vorweihnachtliche Büroausflug führt uns zur Besichtigung zweier Bauten: In Uzwil besichtigen wir den Rohbau des neuen Gemeindehauses sowie in Arbon das neu erstellte Bürgerheim, welches kurz vor der Inbetriebnahme steht. Nach dem Glühwein geht's für die Raumfinder in die wohlverdiente Winterpause. 

19.08.2015

Büroreise Bergell

Unsere Architekturreise führte uns via dem Engadin ins Bergell welches den diesjährigen Wakkerpreis erhielt.

17.10.2014

Büroreise Köln

Auf den Spuren von Peter Zumthor reisten wir dieses Jahr für drei Tage nach Köln.

01.09.2016

Büroreise Madrid

¡Olé!

raumfindung architekten verweilen im sonnig-heissen Spanien und entdecken Caixa, Corrala und Croqueta in Madrid.

20.05.2012

raumfindung in Denkwerkstatt umgezogen

Neue Jonastrasse 60A (Weidmann Areal) Besucherparkplätze stehen zur Verfügung.

17.07.2014

Werkbericht 2

Werkbericht Nr. 2 zeigt unser aktuelles Schaffen aus den vergangenen zwei Jahren von 2012-2014.

27.01.2017

Werkbericht 3

Bereits die dritte Ausgabe des Werkberichts konnte gedruckt werden: Der Werkbericht 3 zeigt nebst der aktuellen Wettbewerbstätigkeit vor allem die kürzlich fertig gestellten Bauten sowie Einblicke in die laufenden Baustellen. 

27.08.2021

Büroreise ins Glarnerland

Während eines intensiven Tages haben die Raumfinder das Glarnerland erkundet: Über die traditionsreiche Holzbiegekunst der Möbelfabrik horgenglarus ging die Reise zum Brand und Wiederaufbau der Stadt und der zeitgenössischen Kunst im Kunsthaus Glarus. Einen eindrücklichen Abschluss fand die Reise in den kathedralartigen Stollen des Landesplattenbergs in Engi.

22.08.2022

Büroreise Basel

Die Büroreise 2022 führte die raumfinder nach Basel. Während zwei Tagen wurden historische und zeitgenössische Bauten erkundet sowie die Gastronomie auf die Probe gestellt. Abschluss bildete eine vielfältige Führung rund um Architektur und Design auf dem Vitra-Campus. 

29.06.2023

Sommerabend in der Schüür

Vor den wohlverdienten Sommerferien geniessen die raumfinder einen gemeinsamen Abend in der "Schüür" und stossen auf eine spannende erste Jahreshälfte und die geglückte Teamarbeit an. 

29.08.2023

Büroreise Turin

Die alljährliche Büroreise führte die raumfinder in diesem Jahr nach Turin. Während drei sonnigen und heissen Tagen standen nebst industriellen und kulturellen Zeitzeugen wie das Lingotto oder das Teatro Regio auch zeitgenössische Bauten wie das Baumhaus 25 Verde auf dem Programm. Daneben wurde die lokale Gastronomie ausgiebig genossen.

17.07.2024

Werkbericht 5

Mit der fünften Ausgabe des Werksberichts geben wir erneut Einblick in unser Schaffen für eine gelebte, klimaschonende Baukultur mit einer Auswahl von Wettbewerben, erstellten Bauten sowie laufenden Baustellen der vergangenen fünf Jahre von 2019-2024. Bestellungen sind ab sofort möglich. 

22.08.2025

Büroreise Churer Rheintal und Surselva

Die alljährliche Büroreise führte dieses Jahr in das Churer Rheintal und Surselva. Während zwei Tagen wurden interessante Bauten besichtigt, vom Stampflehm-Kino mit partizipativem Engagement des Ilanzer Filmclubs, dem Kindergarten Untervaz, der Kinder- und Jugendpsychiatrie in Chur bis zum Verkehrsstützpunkt der Kantonspolizei Graubünden als Leuchtturmprojekt im Bereich Nachhaltigkeit.

20.10.2015

Fertigstellung erste Holzbausiedlung der ABZ Balberstrasse in Minergie A

In Zürich Wollishofen sind die ersten Holzbauten der Allgemeinen Baugenossenschaft Zürich fertiggestellt. Der Ersatzneubau der Siedlung Balberstrasse bietet neu doppelt so vielen Menschen Wohnraum wie die bisherige Siedlung. Die 68 Wohnungen und der Kinderhort sind bezogen.

19.10.2016

1. Norman Foster Solar Award für die Überbauung Balberstrasse

Die Wohnüberbauung der ABZ an der Balberstrasse gewinnt an der 26. Schweizer Solarpreisverleihung den 1. Norman Foster Solar Award in der Kategorie "Gebäude". Dank der ganzflächig in der Dachfläche integrierten PV-Anlage, weist das kleine Kraftwerk eine Leistung von 556 kW auf und erzeugt 466'300 kWh/a. Somit kann eine Energieversorgung von 117% vorgewiesen werden. (Luftaufnahme: Schweizer Solarpreis 2016).

05.07.2018

1. Rang Ergänzungsbau Heilpädagogisches Institut St. Michael

raumfindung architekten erzielen beim Studienauftrag zum Ergänzungsbau des Heilpädagogischen Instituts St. Michael in Adetswil den ersten Rang. Wir freuen uns über den Zuschlag und die weitere Projektbearbeitung. 

18.06.2024

Fertigstellung bei der heilpädagogischen Sonderschule

Der Holzelementbau des Ergänzungsbau ist bereits in einem edlen Schindelkleid gehüllt und wird im Juni der Bauherrschaft übergeben. Wir freuen uns auf die Inbetriebnahme der Schul- und Werkräume. Im Juli wird das Bauwerk in Anwesenheit von Vertretern des Kantons ZH feierlich dem Institut St. Michael übergeben.

21.12.2020

1. Rang Projektwettbewerb Schulraumerweiterung Altendorf

"Das Projekt zeichnet sich durch eine massstäblich überzeugende Einpassung der präzise gesetzten, in Form, Höhe und äusserer Erscheinung stimmigen Baukörper ins Ortsbild aus […]. Die Verbindung zwischen Neubau und bestehendem Schulhaus bildet ein hervorragendes und gut dimensioniertes räumliches Zentrum der gesamten Anlage […]. Gesamthaft betrachtet erfüllt der Vorschlag die Bauaufgabe optimal […]." (Aus dem Jurybericht)

10.07.2025

Baustart Schulraumerweiterung Altendorf

Der Baustart für die Erweiterung der Schulanlage Altendorf mit Mehrzwecksaal, Musikzimmer und Dreifachturnhalle ist erfolgt. Der Neubau schafft mit dem neuen Schulpark, der klaren Adressbildung und der Anbindung an den Bestand eine identitätsstiftende Mitte für das Areal.

zum Projekt

zur Baustellenkamera

07.03.2022

1. Rang Neubau Kirchenzentrum Amriswil

raumfindung architekten erzielen beim Projektwettbewerb für den Neubau Kirchenzentrum Amriswil den 1. Rang. "Insgesamt beeindruckt das Projekt "Chriesi-Foyer" als für den Ort stimmiger und architektonisch eindrücklicher Entwurf, der bis im Detail sorgfältig erarbeitet ist und auch in der Gesamtheit der Themen Organisation, Nachhaltigkeit, Statik, Haustechnik etc. zu überzeugen mag." (Aus dem Jurybericht)

03.06.2024

Baubewilligung "Neubau Kirchenzentrum Amriswil“ vorliegend

Die Baubewilligung für das Kirchenzentrum „Chriesi-Foyer“ liegt ohne Einsprachen vor. Der fein gegliederte Holzbau als eigenständige Typologie steht der mächtigen Kirche gegenüber, ordnet sich unter und ist in hohem Masse identitätsstiftend.

14.02.2025

Spatenstich für das neue Kirchenzentrum Amriswil

Trotz winterlicher Temperaturen begleiteten zahlreiche Besucher den Spatenstich für das neue Kirchenzentrum Amriswil und packten tatkräftig mit an. 

zum Projekt

24.05.2025

Neues Kirchenzentrum nimmt Form an

Das Fassadenmockup ist freigegeben, die Baumeisterarbeiten haben gestartet und bereits im Herbst wächst der Holzbau in die Höhe. Mit dem Neubau in unmittelbarer Nähe zur evangelischen Kirche entsteht in Amriswil ein zeitgemässer Ort der Begegnung welcher Gemeinschaft und Architektur auf spannende Weise verbindet.

zum Projekt

24.11.2025

Aufrichten der Rautendecke für das neue Kirchenzentrum

Bei der Evangelischen Kirchgemeinde Amriswil wurden die letzten sonnigen Herbsttage für die Holzbauaufrichte des neuen Kirchenzentrums genutzt. Die diagonal verlaufenden Dachbinder formen die rautenförmige Decke des Saals. Die drei Etappen des Aufrichtens werden bis Ende Jahr abgeschlossen. 

zum Projekt

02.02.2026

Räumliche Qualität im Saal des neuen Kirchenzentrums

Im Innern des neuen Kirchenzentrums wird die räumliche Qualität des Holzbaus nun erlebbar. Aufgerichtete Stützen und die fein abgestimmten Dachbinder der Rautendecke prägen den Saal und lassen die spätere Atmosphäre bereits erahnen.

zum Projekt

29.04.2014

1. Rang Pflegeheim Villa Quisisana, Arbon

"Die Gebäudestruktur überzeugt mit seiner sensiblen Platzierung und Gestaltung des Erweiterungsbaus sowie dem gut durchdachten Raumkonzept. Insbesondere der attraktive teilweise zweigeschossige Erschliessungs- und Aufenthaltsbereich, bietet vielfältige Begegnungsmöglichkeiten. Die gut gegliederten Pflegezimmer mit den privaten Loggien, zeugen von einer intensiven Auseinandersetzung mit der Aufgabenstellung." (Aus dem Jurybericht)

16.03.2017

"Bau der Woche": Raumskulptur in elfenhaftem Holzkleid

Das kürzlich fertiggestellte Bürgerheim in Arbon wird als "Bau der Woche" auf swiss architects vorgestellt: Die helle Holzfassade verleiht dem Neubau durch die Lisenen und feine Fassadengliederung eine elfenhafte Leichtigkeit.

02.01.2017

Inbetriebnahme Bürgerheim Arbon

Mit dem Einzug der ersten Bewohner konnte das Bürgerheim Quisisana in Arbon in Betrieb genommen werden. 

14.06.2024

Baukredit für Wohnquartier Heuteil genehmigt

Die Ortsgemeinde Bad Ragaz realisiert preiswerte Wohnungen an der Heuteilstrasse. Das Projekt linear von raumfindung architekten wurde beim offenen Projektwettbewerb ausgewählt und aktuell läuft das Baubewilligungsverfahren basierend auf dem genehmigten Sondernutzungsplan. Die Wohnhäuser mit rund 82 Wohnungen werden in Holzbauweise erstellt und die Holzfassaden feingliedrig ausgestaltet.

17.02.2023

Festsetzung Sondernutzungsplan Heuteil, Bad Ragaz

Mit der Inkraftsetzung des SNP wird die Planung des Wohnquartiers Heuteil für „kostengünstiges Wohnen“ in Holzbauweise für die Ortsgemeinde Bad Ragaz fortgesetzt. „Der Sondernutzungsplan Heuteilstrasse leistet einen hochwertigen Beitrag zur qualitätsvollen Innenentwicklung“. (Auszug aus der Verfügung)

22.11.2021

Projektierungskredit Wohnquartier Heuteil genehmigt

Die Ortsgemeinde Bad Ragaz SG genehmigt an der ausserordentlichen Generalversammlung den Projektierungskredit mit 98% Ja-Stimmen. Aktuell liegt im Rahmen des Mitwirkungsverfahrens der Sondernutzungsplan für die Öffentlichkeit auf.

22.01.2020

1. Rang Projektwettbewerb Heuteil, Bad Ragaz

Die Ortsgemeinde Bad Ragaz beabsichtigt die Realisierung von preiswerten Wohnungen an der Heuteilstrasse. raumfindung architekten erzielen beim offenen Projektwettbewerb mit ihrem Beitrag linea den 1. Rang. Die Baukörper werden in Holzbauweise erstellt und die Fassaden feingliedrig ausgestaltet. Die strassenbegleitenden Wohnbauten fassen einen grosszügigen, parkähnlichen Aussenraum und beinhalten 96 Wohnungen. 

13.01.2025

Fertigstellung Stadthaus Meilen

Das neue Stadthaus an der Bahnhofstrasse in der Quartiererhaltungszone mitten im Dorfkern von Meilen steht kurz vor der Fertigstellung. Vor der Übergabe an die Bauherrschaft im März wird anlässlich einer freien Werkbesichtigung den beteiligten Planern, Freunden, Familien und Fachkollegen im März nochmals Einblick gegeben.

zum Projekt

05.07.2021

2. Rang Projektwettbewerb Ersatzneubau Bezirksgericht Hinwil

raumfindung architekten erzielen mit ihrem Beitrag "Zauberberg" den 2. Rang für den Ersatzneubau des Bezirkgerichts Hinwil. "Der sehr wertvolle Beitrag besticht insgesamt durch Eigenständigkeit im architektonischen Ausdruck, Benutzerfreundlichkeit und durch die klugen Grundrisslayouts." (Aus dem Jurybericht)

10.02.2023

2. Rang, offener Projektwettbewerb Neubau Turnhalle und Schulraumerweiterung Benken

raumfindung architekten erzielen beim offenen Projektwettbewerb für den Neubau und Schulraumerweiterung den 2. Rang. „...Die vielschichtigen Zonierungen durch räumliche und topografische Elemente bieten eine dichte Nutzbarkeit der Anlage. Sinnfällige Grundrissorganisationen bieten eine gute Grundlage für die alltägliche Bespielung...“ (Aus dem Jurybericht)

18.05.2016

1. Preis Projektwettbewerb Bezirksgericht Meilen

"Die ausserordentlich präzise und spezifische Umsetzung des Raumprogramms und der funktionstypischen Abläufe gibt dem Projektvorschlag den Charakter eines Massanzuges: Alles sitzt perfekt, befindet sich am richtigen Ort und verfügt über den passenden Ausdruck." (Aus dem Jurybericht)

14.03.2024

Einweihung des Bezirkgerichts Meilen

Ende Februar fand mit Vertretern des Obergerichtes und Bezirksgerichts Meilen, der Kantonspolizei sowie den Vertretern der Baudirektion des Kantons Zürich die feierlich Einweihung statt. Seit März werden die Verhandlungen nun in den neuen Gerichtssälen des Erweiterungsbaus geführt. 

18.08.2016

1. Rang Zentrumsentwicklung Bronschhofen

"Insgesamt überzeugt das Projekt mit einer vorzüglichen ortsbaulichen Setzung und sich gut in den Dorfkörper integrierenden Baukörpern, der guten Disposition der Nutzungsbereiche mit vielfältigen Wechselbeziehungen von innen heraus und über das Quartier hinaus." (Aus dem Jurybericht)

21.11.2025

Baubewilligung für das Holzhaus mit Lehmkern vorliegend

Die Baubewilligung für das Holzhaus in Meilen liegt ohne Einsprachen vor. Am Bodmerweg starten ab Sommer 2026 die Rückbauarbeiten, damit im Anschluss das Einfamilienhaus mit Einliegerwohnung erstellt werden kann.

zum Projekt

15.12.2021

1. Rang Studienauftrag Areal Boldern

raumfindung architekten erzielen beim Studienauftrag Areal Boldern den 1. Rang. "Mit der Kombination räumlicher Qualitäten eines Einfamilienhauses mit der Effizienz verdichteten Bauens, gelingt den Verfassenden mit dem Projekt "Seeterrassen" ein spannender Spagat." (aus dem Jurybericht)

28.05.2024

Spatenstich für die Wohnüberbauung Boldern

Die Stiftung Boldern feiert den symbolischen Spatenstich für die Wohnüberbauung "tilia" oberhalb des Zürichsees. Auf einer Fläche von 15’000 Quadratmetern entstehen bis 2026 acht Gebäude mit insgesamt 60 Wohnungen, drei Viertel der Wohnungen verfügen auf den Terrassen über prächtigen Ausblick auf den Zürichsee.

29.08.2025

Aufrichtfest Wohnüberbauung "Tilia"

Bei strahlendem Spätsommerwetter durften wir gemeinsam mit rund 160 Gästen aus Bauherrschaft, Planung und Unternehmerschaft die Aufrichte in Männedorf über dem Zürichsee feiern. Die Freude über das Erreichte war spürbar – gemeinsam wurde auf die beeindruckende Teamleistung angestossen und den Beteiligten herzlich für ihren grossen bisher geleisteten Einsatz gedankt.

02.06.2021

1. Rang Bubikerhaus

Der skizzierte „Zugang zur Aufgabe“ hat im Planerwahlverfahren die Jury überzeugt. Das denkmalgeschützte Bubikerhaus liegt in der Altstadt Rapperswil mit Blick auf die Seebucht. Die neue Familienwohnung im historischen Dachstuhl zeigt sich zur Altstadt hin mit einer „Schleppgiebelgaube“.

31.05.2025

Fertigstellung Bubikerhaus

Die Renovations- und Umbauarbeiten im Bubikerhaus wurden erfolgreich abgeschlossen.  Die beiden umgebauten Geschosswohnungen in den Obergeschossen und die Maisonettewohnung im ausgebauten Dachgeschoss wurden der Stadtverwaltung im Frühjahr zur Vermietung übergeben. Die Fassade mit der akzentbildenden Schleppgiebelgaube gegen den Herrenberg erstrahlt in frischem Glanz und verleiht dem historischen Stadtbaustein neue Kraft.

zum Projekt

27.06.2018

1. Rang Mehrzweckbau "Chamäleon"

"Es handelt sich um einen stringenten und eigenständigen städtebaulichen und architektonischen Entwurf mit hoher Erkennbarkeit, welcher die schwierige Aufgabe der Vereinbarkeit der unterschiedlichen Nutzungen souverän löst und damit einen wertvollen Beitrag zum Ort und dem umgebenden Quartier leistet." (aus dem Jurybericht)

04.11.2019

1. Rang Studienauftrag Entwicklung Bahnhofgebiet Degersheim

raumfindung architekten erzielen beim Studienauftrag Entwicklung Bahnhofgebiet Degersheim den 1. Rang. Das Beurteilungsgremium erachtet den Projektvorschlag dank "seiner Zurückhaltung und durch seine Wertschätzung gegenüber der gewachsenen Struktur als die in der Gesamtbetrachtung als angemessene Strategie für die zukünftige Entwicklung von Degersheim". (aus dem Jurybericht)

25.08.2020

2. Rang Projektwettbewerb Neubau Pflegezentrum Nidelbad

"Insgesamt handelt es sich beim Projekt "circumire" um einen sehr sorgfältig entwickelten, stark in der Situation verankerten und kohärent bis in die Vorschläge von Materialisierung umgesetzten Vorschlag […]." (aus dem Jurybericht)

03.12.2014

1. Preis Gastliches Haus Ebnat-Kappel

"Das Projekt überzeugt auf der ortsbaulichen, betrieblichen und architektonischen Ebene gleichsam, ebenso wie im Ausdruck; eine Qualität, die in unserer schnelllebigen Zeit wieder mehr an Bedeutung erlangen sollte. Im Projektvorschlag werden das Programm und die Erwartungen an ein gastliches Haus sehr gut umgesetzt." (Aus dem Jurybericht)

05.12.2017

Bezug "Gastliches Haus"

Das "Gastliche Haus" in Ebnat-Kappel SG wurde von der Kirchgemeinde bezogen. Das Einweihungsfest sowie die Segnung des neuen Pavillions und der Sanierung des bestehenden Pfarrhauses findet am 24. März 2018 statt.

31.05.2018

Patina Kupferdach

Der Betrieb des Gastlichen Hauses in Ebnat-Kappel ist in vollem Gange und das handwerklich erstellte Kupferdach nimmt allmählich die beabsichtigte Patina an.

05.09.2017

Toggenburger Präzisions-Handwerk

In Ebnat-Kappel wird geschindelt: 40'000 Holzschindeln werden einzeln und von Hand an der Fassade des Gastlichen Hauses angebracht.

18.03.2022

1. Rang Studienauftrag Neubau Chilehuus Egg

raumfindung architekten erzielen beim Studienauftrag Neubau Chilehuus Egg den 1. Rang. „Das Projekt ist aus den örtlichen Gegebenheiten entwickelt, überzeugt sowohl in der äusseren Gestaltung wie auch in Bezug auf innere Organisation und räumliche Qualität." (Aus dem Jurybericht)

01.03.2017

Bauwerksübergabe Wohnbaute Eich mit Pfarrbüro

Nach termingerechter Fertigstellung wird die Wohnbaute Eich der Bauherrschaft übergeben. Die Pfarrräume der evangelisch-reformierten Kirche sind in Betrieb genommen und ab heute beziehen die ersten Bewohner die grosszügigen Mietwohnungen. 

01.07.2016

1. Rang Zentrumsentwicklung Hombrechtikon

raumfindung architekten gewinnen den Studienauftrag zur Zentrumsentwicklung in Hombrechtikon. Mit der mäandrierenden Gebäudeform nimmt der Bau Bezug auf die bestehenden Bauten und definiert eine prägnante Adresse zur Kreuzung. Das Projekt beinhaltet nebst den 18 Wohnungen eine Gewerbenutzung im Sockelgeschoss. 

04.10.2024

1. Rang Neubau Gemeindehaus Eschenbach

Der „Zaunkönig" erzielt beim anonymen Wettbewerb für das neue Gemeindehaus in Eschenbach den 1. Rang. Das Gemeindehaus wird in einer nachhaltigen Holzelementbauweise aus regionaler Materialbeschaffung kombiniert mit einfachen Gebäudetechnikkonzepten realisiert. Der Vorschlag besticht durch eine abwechslungsreiche inneren Raumfolge, ein flexibles Raumkonzept sowie einen Dachpatio als koorperative Mitte und Begegnungsort der Gemeindeverwaltung. 

zum Projekt

14.05.2025

Start Projektierung Neubau Gemeindehaus Eschenbach

Die Arbeiten am Vorprojekt für das neue Gemeindehaus Eschenbach haben begonnen. Derzeit werden das architektonische Konzept sowie die Kostenschätzung als Grundlage für den geplanten Baukredit im kommenden Jahr ausgearbeitet.

zum Projekt

20.01.2017

1. Preis für die Sporthalle in Eschlikon

raumfindung architekten erzielen den 1. Preis / 2. Rang beim Projektwettbewerb für die neue Sporthalle in Eschlikon. Zur Weiterbearbeitung wird das angekaufte Projekt empfohlen. Wir freuen uns über die Würdigung unseres Projektvorschlages und wünschen gutes Gelingen beim Bauvorhaben.

18.09.2014

"Bau der Woche": Alte Fabrik Kulturzentrum, Rapperswil-Jona

Kürzlich wurde das Kulturzentrum mit Stadtbibliothek in den ehemaligen Geberit Werkstätten fertiggestellt.

14.03.2014

Alte Fabrik Kulturzentrum

Nach 24 monatiger Bauzeit ist aus dem Stammhaus der Metallgiesserei Gebert (heute Geberit), ein zeitgenössisches Kulturzentrum mit Stadtbibliothek, Theater und Ausstellungshalle entstanden.

06.04.2016

Nomination "Award für Marketing + Architektur"

Die Alte Fabrik ist für den "Award für Marketing + Architektur 2016" in der Kategorie 4: Publikums-Bauten/Kulturbauten nominiert. Die Bekanntgabe der Gewinner der Auszeichnung für hochwertige Corporate Architecture findet im Rahmen der Preisverleihung am 22. April 2016 im KKL in Luzern statt.

11.12.2019

2. Rang Forensikstation Wil

Der Entwurf von raumfindung architekten erzielt beim offenen Wettbewerb mit 70 Teilnehmern den 2. Rang. "… das Projekt ist ein interessanter, kompakter Vorschlag für eine geschlossene Forensik an diesem Ort". (aus dem Jurybericht)

25.05.2022

Fertigstellung höchstgelegener landwirtschaftlicher Betrieb des Kanton Zürich

Der Ersatzneubau des Brandobjektes in der Grossegg unterhalb des Schnebelhorns auf 1000 m.ü.M. wurde nach achtmonatiger Bauzeit dem Hochbauamt des Kanton Zürich übergeben.

28.10.2022

Mehrgenerationenhaus mit Lauben fertiggestellt

Das Mehrgenerationenhaus in Rapperswil beherbergt elf Wohnungen und ermöglicht ein attraktives Zusammenleben mehrerer Generationen. Die 2-Zimmerwohnungen beschränken sich auf 50 m2, die 4.5-Zimmerwohnungen auf 100 m2. Dank den Zusatzangeboten wie Gemeinschaftsraum, Dachterrasse und den Laubengängen resultiert ein attraktives Gesamtangebot.

30.01.2015

1. Rang Erweiterung Gästehaus

Der Projektvorschlag verortet sich in der landschaftlichen Parkanlage an der Ostseite des Gebäudekomplexes. Das neue Bauvolumen rückt dabei leicht vom Bestand weg und führt so mittels einer Freitreppe das vielfältige Wegnetz weiter.

19.10.2017

Umgebung Neugestaltung Sockelgeschoss

Pünktlich zum goldenen Herbst wird bei der Neugestaltung des Sockelgeschosses die Umgebungsgestaltung ergänzt. 

03.05.2019

1. Rang Studienauftrag Psychiatrisches Zentrum AR

raumfindung architekten erzielen beim Studienauftrag für den Umbau, Erweiterung und Sanierung des Psychiatrischen Zentrums den ersten Rang. "Wesenstreu überzeugt durch seine einfache und selbstverständliche Gesamtkonzeption mit einem kompakten Anbau und einem rücksichtsvollen Umgang sowie die einhergehende konsequente Aufteilung der verschiedenen Nutzungen." (aus dem Jurybericht)

18.03.2019

1. Rang Schulraumerweiterung Herrenhof Uzwil

"Die verblüffend einfache und selbstverständliche Konzeption des sorgfältig ausgearbeiteten Projektes Lindenhof überzeugt. Den Verfassern gelingt es, das geforderte Raumprogramm so auf dem westlichen Teil des Perimeters anzuordnen, dass trotz Verdichtung ein neues und in sich differenziertes Schulensemble mit wohlproportionierten und sehr gut nutzbaren Freiräumen entsteht." (aus dem Jurybericht)

30.04.2024

Baukredit Schulraumerweiterung Herrenhof genehmigt

Nach Abschluss des Vorprojekts im Jahr 2020 wurde die Planung zur Sicherstellung der Finanzierung und weiteren Schulraumplanung pausiert. Für die Abstimmung über den Baukredit wurde nun 2023 das Vorprojekt revidiert und die Kosten aktualisiert. Im Februar 2024 hat die Uzwiler Stimmbevölkerung mit einem Ja-Stimmen Anteil von gegen 77% der Umsetzung zugestimmt. 

20.06.2025

2. Rang Neubau WoKi und CP-Schule St.Gallen

raumfindung architekten erzielen beim Projektwettbewerb für den Neubau WoKi und CP-Schule den 2. Rang. Die Jury würdigt den Projektvorschlag mit den auf das Wohlbefinden der Kinder und Jugendlichen gestalteten Innenräume und den gut durchdachten und naturnah gestalteten Aussenräumen. 

zum Projekt

13.04.2022

Neues Winterquartier für den Circus KNIE

Der Schweizer National-Circus tourt jedes Jahr quer durch die Schweiz. Seit über 200 Jahren zählt die Zirkus-Dynastie KNIE zu den ältesten und führenden Zirkusunternehmen Europas. In den Wintermonaten pausieren die Familie und Artisten. Das grosse Zirkuszelt mit dem gesamten Fahrzeugpark wird in Rapperswil-Jona geparkt. raumfindung architekten entwerfen das neue Winterquartier.

08.03.2024

Baustart neues Winterquartier Circus KNIE

Die Baubewilligung für den Ersatzneubau des Winterquartiers des Circus KNIE liegt vor und das Mock-Up der Fassade ist genehmigt. Ab Sommer wird der präfabriziert Holzbau aufgerichtet und die rund 11’000m2 Umgebungsfläche als Areal für den Fuhrpark des Circus KNIE erstellt.

14.11.2024

Tanzende Stützen vom Winterquartier KNIE

Der Holzelementbau für das neue Winterquartier vom Circus KNIE ist fertig aufgerichtet und die holzbeplankten Handfalttore sind eingebaut. Die V-Stützen auf den vorgefertigten Betonsockeln sind millimetergenau versetzt und der gedeckte Fuhrpark für die Fahrzeuge des Circus KNIE wirkt in seiner ganzen Grösse.

02.06.2025

Fertigstellung Winterquartier KNIE

Nach rund zweieinhalb Jahren Bauzeit sind die Bauarbeiten für den werkhofartigen Holzbau des Ersatzneubaus des Winterquartiers für den Circus KNIE abgeschlossen und das Bauwerk wurde der Bauherrschaft übergeben. Wir freuen uns über den Bezug der Werkstätten und des Fuhrparks Ende Juni durch den Circus.

zum Projekt

14.11.2025

"Bau der Woche": Winterquartier KNIE

raumfindung architekten haben das neue Winterquartier des Schweizer Nationalzirkus Knie in Wagen gestaltet. Der ästhetische Holzbau beherbergt die Werkstätten und dient in der Winterpause als Einstellhalle für den großen Zirkus-Fuhrpark.

zum Projekt

swiss-architects.com

10.01.2025

2. Rang Neubau Schulzentrum Lärch

raumfindung architekten erzielen beim Projektwettbewerb für den Neubau Schulzentrum Lärch den 2. Rang. Die Jury würdigt den Projektvorschlag mit enger Verbindung der Landschaft als Aussenwelt und der dreigeschossigen, lichtdurchfluteten Lernlandschaft im Innern. 

zum Projekt

07.05.2021

1. Preis Mehrzweckhalle Grüsch

raumfindung architekten erzielen beim Projektwettbewerb Mehrzweckhalle Grüsch den 1. Rang. "Das Projekt «Fundus» zeichnet sich durch einen sorgfältig auf den Ort und die Aufgabe abgestimmten Vorschlag aus und vermag in seiner qualitativ hochstehenden, ganzheitlichen Bearbeitung zu überzeugen.“ (Aus dem Jurybericht)

27.06.2025

Aufrichtefest Mehrzweckhalle Findus in Grüsch

Zusammen mit der Bauherrschaft, den Planern und Handwerkern wurde das Aufrichtfest mit geöffnetem Bühnentor und musikalischer Umrahmung der Musikgesellschaft Grüsch gebührend gefeiert. Im Frühling 2026 erfolgt die Fertigstellung und Bezug. 

12.02.2025

Aufrichte Holzbau für die Mehrzweckhalle Grüsch

Die Dachbinder mit einer Länge von 17 Metern werden präzise versetzt. Bis im Sommer erhält die Mehrzweckhalle ihre Fassade mit Holz aus dem einheimischen Grüscher Wald. 

05.09.2025

Mehrzweckhalle Grüsch erhält Label "Schweizer Holz"

Die Mehrzweckhalle FUNDUS in Grüsch wird mit dem Label "Schweizer Holz" ausgezeichnet. Die Übergabe fand unter den Arkaden des Neubaus statt und steht für den Einsatz von nachhaltig gewonnenem Holz aus der Schweiz.

10.01.2026

Mehrzweckhalle Grüsch im verschneiten Umfeld

Im verschneiten Umfeld öffnet sich die Mehrzweckhalle Grüsch über die grosszügige Verglasung des Bühnenbereichs zum vielseitig nutzbaren Schulhof. Der Bau zeigt sich als zurückhaltender und zugleich präziser Baukörper mit klarer Volumetrie. Die Übergabe an die Gemeinde Grüsch ist per Ende März 2026 vorgesehen.

zum Projekt

05.03.2026

Werkbesichtigung Mehrzweckhalle Grüsch

Ende März 2026 wird die Mehrzweckhalle mit Bühne und Vereinslokal der Gemeinde und dem Schulbetrieb übergeben. Das Gebäude wurde in Holzelementbauweise erstellt und erhält eine Fassade aus regional beschafftem Holz. Am Mittwoch, 18. März 2026, kann das Bauwerk im Rahmen einer Werkbesichtigung besichtigt werden.

zum Projekt

zur Einladung

18.10.2013

1. Preis Gemeinde- und Kulturzentrum Mels

"Das Projekt „pinot noir“ besticht insgesamt durch eine hervorragende Einpassung beider Baukörper in die vorhandenen Dorfstrukturen mit wohlproportionierten und gut gestalteten Aussenräumen und durchwegs attraktivem Erdgeschossbereich." (Aus dem Jurybericht)

20.12.2017

Beleuchtungstest Gemeinde- und Kulturzentrum Mels

Im dunklen Bergwerksstollen wird die Deckenbeleuchtung für den Grossen Saal des Gemeinde- und Kulturzentrums in Mels, SG bemustert. 

In dem Sinne wünschen wir allen leuchtende Festtage und einen guten Start ins neue Jahr!

06.05.2021

"Bau der Woche": Kultur- und Kongresshaus Verrucano, Mels

08.06.2021

Gutes Bauen Ostschweiz unterwegs

Um den Diskurs über lokale Baukultur in der Schweiz zu fördern, hat das Architektur Forum Ostschweiz (AFO) eine Artikelserie in der Tagespresse lanciert. Im Detail interessiert die baukulturelle Identität der Orte. Das Verrucano Mels ist Gastort mit Führung und Podiumsdiskussion.

20.06.2021

Bushaltestelle Verrucano hat ihren Betrieb aufgenommen

Als kleine Schwester des Verrucano präsentiert sich die neu gestaltete Bushaltestelle im selben edlen „pinot-noir“ auf der gegenüberliegenden Strassenseite. 

31.08.2021

Das Sinfonieorchester St. Gallen im Kongresshaus Verrucano Mels

Das Sinfonieorchester St. Gallen hat die grosse Bühne im Verrucano zum ersten Mal in vollem Umfang mit einem 70-köpfigen Orchester unter dem Motto "Sommerkonzert" bespielt. 

11.01.2022

„Goldener Schemel 2021“ für „Verrucano“

Die Gemeinde Mels SG gewinnt mit dem „Verrucano“ den „Goldner Schemel 2021“. Der Award zeichnet die architektonische Gestaltung des Dorfplatzes mit dem Kultur und Kongresshaus „Verrcano“ und der Rathauserweiterung aus.

10.04.2019

1. Rang Studienauftrag Wohnen am Obstgartenweg

"Der Beitrag besticht durch sehr viele richtig getroffene Annahmen, (wohl ursprünglich) gerade auch hinsichtlich soziologischen Fragestellungen. Die hochsensible, gleichzeitig aber auch bescheidene und zurückhaltende Art der Ausformulierung haben Jonagold zum einstimmigen und -deutigen Sieg verholfen. Ein bemerkenswert schöner Beitrag." (aus dem Jurybericht)

20.09.2023

Aufrichte Wohnüberbauung Jonagold

Unter dem prächtigen Nussbaum der Schüür in Rapperswil durften wir zusammen mit der Bauherrschaft, den Planern und am Bau beteiligten Handwerkern an einem spätsommerlichen Abend die Aufrichte der Wohnüberbauung Jonagold feiern. 

31.05.2024

Fertigstellung Patiosiedlung mit Dachgärten

Die Patiosiedlung mit 24 individuellen Wohneinheiten wird im September fertig gestellt. Jede Wohnung verfügt über einen privaten Garten oder Dachgartenpatio. Das Projekt verpflichtet sich dem verdichteten Wohnungsbau und zwischen den 18 verputzten Gebäudevolumen und dem sandgestrahlten Betonmauern befindet sich eine identitätsstiftende Raumfolge aus Vorplätzen, Eingangspations und gemeinschaftlichen Freiräumen. 

31.08.2024

Fertigstellung Patiosiedlung mit Dachgärten

Die Wohnüberbauung Jonagold am Obstgartenweg in Rapperswil steht kurz vor der Fertigstellung. Die beteiligten Planer, Freunde, Familien, Fachkollegen und Bürokontakte werden zur freien Werkbesichtigung eingeladen. Die 24 Einheiten werden anschliessend im September den Eigentümern übergeben.

16.11.2020

Zweischwesternhaus im bunten Herbst

Nach gut zwei Jahren seit dem Bezug des Doppelfamilienhauses in Pfäffikon ZH ist der Neubau im Quartier eingewachsen. Die Bepflanzungen in der Umgebung gedeihen und das Haus hat wohltuende Patina angesetzt.

05.02.2026

Grundsteinlegung Neuüberbauung Linde Kreuzlingen

Seit Sommer 2026 sind die Bauarbeiten an der Neuüberbauung Linde in Kreuzlingen im Gang und schreiten zügig voran. In Anwesenheit der Bauherrschaft, Planer, Unternehmer sowie von Vertreterinnen und Vertretern der Stadt Kreuzlingen wurde heute feierlich der Grundstein für die Neuüberbauung Linde gelegt. Die Grundsteinlegung markiert einen wichtigen Meilenstein auf dem Weg zur Realisierung des neuen Stadtbausteins. 

zum Projekt

zur Baustellenkamera

18.06.2025

Baustart Neuüberbauung Linde Kreuzlingen

Im Auftrag der POST Immobilien entsteht an zentraler Lage in unmittelbarer Nähe zum Bahnhof Kreuzlingen die Neuüberbauung "Linde" mit Gewerbeflächen und 60 Wohnungen. Die Entwicklung erfolgt auf Basis des genehmigten Gestaltungsplans. Der Baustart erfolgt mit dem Rückbau der bestehenden Postfiliale. 

zum Projekt

zur Baustellenkamera

05.10.2023

Baubewilligung "Post" Kreuzlingen vorliegend

Nachdem die Baukommission im August das Mockup gut geheissen hat liegt nun die Baubewilligung für den zehngeschossigen Ersatzneubau mit 60 Wohnungen in den Obergeschossen und Gewerbeflächen im Erdgeschoss vor. 

15.12.2016

1. Rang Neuüberbauung „Linde“ Kreuzlingen

„Das hohe Haus bildet an dieser Stelle keine isolierte Geste, sondern baut mehrfache Dialoge auf. Es spannt zusammen mit dem hohen Kopfbau an der Ecke Bahnhofstrasse/Alleestrasse einen städtischen Raum auf. Auch der zweigeschossige Bau der alten Post an der Bahnhofstrasse wird Teil dieses neuen Ensembles […].“ (Aus dem Jurybericht)

08.07.2024

4. Rang Projektwettbewerb "Neues Stadhaus Romanshorn"

"Der vorgeschlagene Entwurf besticht durch ein überzeugendes städtebauliches Konzept und die Architektur beeindruckt mit ihrer klaren Haltung und identitätsstiftenden Wirkung." (Aus dem Jurybericht)

02.11.2016

Bezug Einfamilienhaus Rütiwiesstrasse

Das Einfamilienhaus an der Rütiwiesstrasse wurde abgeschlossen und die Familie ist in ihr neues Heim eingezogen. 

02.04.2015

1. Preis Ersatzneubau Säntisstrasse

"Geschickt werden drei gegliederte, viergeschossige Gebäudevolumen präzis und selbstverständlich dem Strassenverlauf folgend auf die Grundstücke südlich und nördlich der Strasse gesetzt." (Aus dem Jurybericht)

16.08.2019

Übergabe Säntisstrasse

Die Wohnüberbauung Säntisstrasse wurde per Ende Juli nach 27 Monaten Bauzeit der Bauherrschaft übergeben. Ein Grossteil der 41 Wohnungen ist bereits bezogen und die letzte verfügbare Wohnungen wurde Ende August viermietet. Wir danken allen Beteiligten für die spannende und gute Zusammenarbeit. 

01.04.2015

Bezug Wohnhaus Schmiedgasse

Nach 12 monatiger Bauzeit wird das Wohnhaus Schmiedgasse mit 3 Wohnungen und erdgeschossiger Gewerbenutzung bezogen.

24.11.2021

Fertigstellung Holzhaus in Zumikon

Nach rund 9-monatiger Bauzeit steht das Holzelementhaus fertig in der Herbstsonne. Anfolgend an die gemeinsame Besichtigung wurde der Bau den Bauherren übergeben, der Einzug ist Mitte Dezember vorgesehen.

20.07.2023

Bildungscampus Ostschweiz 3. Rang

raumfindung architekten erzielen beim Projektwettbewerb für den Bildungscampus Ostschweiz den 3. Rang. "Das vorgeschlagene architektonische Konzept verspricht einen hohen Identifikationswert für den neuen Bildungscampus Ostschweiz. Die Projektverfasser schaffen in Form der grosszügigen zentralen Shedhalle einen attraktiven Mehrwert zum geforderten Raumprogramm." (Aus dem Jurybericht)

11.01.2019

1. Rang Neubau Sekundarschulhaus Teufen

"Die ausgeklügelte und reiche Komposition der Haupträume mit den angegliederten Begegnungsräumen kreiert ein einmaliges Raumerlebnis, das zur unverwechselbaren Identität des Sekundaschulhauses Teufen beitragen wird." (aus dem Jurybericht)

21.11.2023

Neues Sekundarschulhaus Teufen bezogen

Das neue Sekundarschulhaus Teufen ist bezogen und der Schulbetrieb hat gestartet. Mit dem innovativen Raumkonzept wird das pädagogische Konzept des kooperativen Schulmodells in Jahrgangsclustern und Niveaugruppen gestärkt. Jeweils zwei Klassenzimmern mit Gruppenraum und einem Begegnungsraum formieren sich zur Einheit, wiederum zwei dieser Einheiten bilden einen Jahrgangscluster. Es resultiert eine attraktive und vielseitig nutzbare Lernlandschaft in den Obergeschossen.

20.09.2024

Sekundarschulhaus Teufen AR gewinnt den Prix Lignum 2024

Die Sekundarschule Teufen gewinnt aus 583 schweizweiten Eingaben die Auszeichnung Holzbauten Region Ost vom Prix Lignum 2024.

 

07.11.2025

Sekundarschulhaus Teufen AR mit Schweizer Solarpreis 2025 ausgezeichnet

Die Jury würdigt das Sekundarschulhaus Teufen AR mit dem Norman Foster Solar Award 2025 als ein Beispiel für klare, zurückhaltende Architektur mit hoher gestalterischer und energetischer Qualität. Mittels der sorgfältig in die Dachlandschaft integrierten Photovoltaik wird eine Eigenstromproduktion von rund 280% des jährlichen Energiebedarfs erzielt.

06.12.2021

Kunsthandwerk auf der Baustelle

Präzisionsarbeit von Planerstellung über Fertigung und Versetzen von Schalelementen, Eisen verlegen bis und mit eingiessen vom Beton. Trotz Kälte gehen die Arbeiten beim Umbau einer Liegenschaft in Rapperswil zügig voran.

08.01.2023

Umbau im Lenggis abgeschlossen

Die Doppelhaushälfte am Lenggisrain wurde wesensgetreu und entsprechend der ursprünglichen Entwurfsidee umgebaut und die Gebäudehülle im innern saniert. Nach gut einjähriger Bauzeit wurde das Haus der Bauherrschaft übergeben.

16.04.2025

Baustart im Stadtkern Uster erfolgt

Die Bauarbeiten für das Wohn- und Gewerbehaus im Stadtkern von Uster haben gestartet. Das fünfgeschossige Stadthaus beinhaltet sieben Wohnungen und ein Ladenlokal im Sockelgeschoss. Der Neubau steht im architektonischen Dialog mit dem benachbarten und inventarisierten Schutzobjekt.

zum Projekt

zur Baustellenkamera

 

12.07.2022

1. Rang Studienauftrag Stadthäuser im historischen Stadtkern

raumfindung architekten erzielen beim Studienauftrag für drei Ersatzneubauten im historischen Stadtkern den 1. Rang. „Das Projekt überzeugt durch seine Selbstverständlichkeit, sich als Stadtbaustein zu sehen … und der Förderung von Vielfalt und Diversität die Nachbarschaft in hohem Masse ernst nimmt.“ (Aus dem Jurybericht)

11.03.2024

Baubewilligung „Maison Hulot“ im Stadtkern Uster

Die Baubewilligung für die Ersatzneubauten im Stadtkern Uster liegt vor. Zwei winkelförmige Stadthäuser flankieren die Poststrasse und fassen im rückwärtigen Bereich einen Grünhof. Die SPSI Swiss Prime Site Immobilien investieren damit in 62 Wohnungen, ein Restaurant am neuen Postplatz und Gewerberäume im Sockelgeschoss.

07.11.2024

Startschuss für neuen Stadtbaustein in Uster

Die Baubewilligung und Baufreigabe für die drei facettenreichen Ersatzneubauten im Stadtkern nahe dem Bahnhof Uster liegt vor. An der Poststrasse starten ab Herbst im inneren der Bestandsbauten die Schadstoffsanierungen mit anschliessendem Rückbau, damit im Anschluss die insgesamt 63 Wohnungen und Gewerbeflächen erstellt werden können.

zum Projekt

zur Baustellenkamera

22.01.2026

Stadtbaustein in Uster nimmt Form an

Die beiden Baustellen in unmittelbarer Nähe der Wohnüberbauung Maison Hulot sowie des Stadthauses an der Gerichtsstrasse in Uster kommen planmässig und zügig voran. Nach Fertigstellung der Untergeschosse entwickeln sich beide Bauten des neuen Stadtbausteins in Uster nun gut sichtbar in die Höhe.

zum Projekt Maison Hulot

zum Projekt Stadthaus Gerichtsstrasse

zur Baustellenkamera

08.05.2025

Baustart Maison Hulot in Uster erfolgt

Die Bauarbeiten für das Maison Hulot an der Poststrasse haben gestartet. Inmitten des Stadtkerns von Uster entstehen insgesamt 63 Wohnungen und Gewerbeflächen: Ein neuer Stadtbaustein im Zusammenspiel von Urbanität, gemeinschaftlich genutztem Hofraum und privatem Rückzugsort.

15.01.2025

1. Rang Streuli Park Süd mit Hochhaus

raumfindung architekten erzielen mit ihrem Beitrag „Non, je ne regrette rien“ beim Studienauftrag für das Streuli Areal in Uznach den 1. Rang. "Der Entwurf, der zwei Flügelbauten mit einem freistehenden Hochhaus kombiniert, schafft auf überzeugende Weise im Südteil des Areals ein neues, lebendiges Stadtviertel." (Aus dem Jurybericht)

zum Projekt

Link zur Medienorientierung auf tvo

06.05.2025

Öffentliche Auflage Teilzonenplan Streuli Park Süd mit Hochhaus

Der Streuli Park wird zur abwechslungs­reichen und lebendigen Mitte direkt neben dem Bahnhof von Uznach. Die Architektur setzt auf Vielfalt und die Fassaden der einzelnen Häuser werden unterschiedlich gestaltet.  Dank dem Hochaus entsteht ein grosszügiger Freiraum als Park.

zum Projekt

zur Projektseite der Streuli Immobilien AG

Link zur Medienorientierung auf tvo

14.12.2018

"Bau der Woche": Gemeindehaus "Löwenherz" Uzwil

Vor einem Jahr durften wir das "Löwenherz" der Gemeinde Uzwil übergeben. Nun wird das Gemeindehaus als "Bau der Woche" auf swiss architects vorgestellt. 

13.12.2017

Gemeindehaus Uzwil

Die letzten Arbeiten am Gemeindehaus in Uzwil SG werden abgeschlossen: Der neue Stickereiplatz erhält, seinem Namen gerecht, eine stimmige Umgebungsgestaltung. 

(Foto: ©Bildform Henau, Peter Dotzauer)

20.01.2020

Machbarkeitsstudie Wartensteinbahn Bad Ragaz

raumfindung architekten unterstützt den Förderverein Wartensteinbahn bei der Entwicklung ihrer einmaligen Vision: die historische Standseilbahn bei Bad Ragaz wird reaktiviert. Das steinerne Bahntrasse mit zahlreichen Viadukten führt vom Dorf Bad Ragaz durch ein Waldstück zum Schloss Wartenstein in Pfäfers an spektakulärer Hanglage. Aktuell wird eine Machbarkeitsstudie für die Tal- und Bergstation als Entscheidungsgrundlage erstellt.

10.01.2017

1. Rang Wohnbauten "Obere Weierwis"

raumfindung architekten gewinnen in Wil den Studienauftrag zur "Oberen Weierwis". Mit den fünf Wohnbauten kann ein stimmiger Beitrag für stadtnahes Wohnen am Siedlungsrand entworfen werden. 

Zusammen mit der "Weierwis" feiern wir zudem unseren zwanzigsten 1. Rang.

22.09.2022

Gemeinschaftshof zwischen umgenutzter Scheune und neuen Holzbauten

Im historischen Dorfkern von Bronschhofen wird das bestehende Ensemble an der Weiherhofstrasse neu gestaltet. Die Scheune und der Stall werden zu grosszügigen Loftwohnungen umgenutzt und vier Reihenhäuser für Familien fassen den neuen Gemeinschaftshof. Die Baueingabe wird im Herbst eingereicht. 

10.05.2019

"Holzhaus mit Lehmkern" ist bezogen

Das Einfamilienhaus vereint die Vorzüge von einem Holzbau, kombiniert mit einem massiven, mittigen Gebäudekern als zentraler Dreh- und Angelpunkt. Um den Gebäudekern formiert sich über drei Geschosse eine räumlich vielfältige Wohnlandschaft, Sichtbezüge im Innenraum über die zweigeschossigen Räume und die atmosphärischen Ausblicke lassen einen grosszügigen Raumeindruck entstehen. Die rohen Holzoberflächen sorgen für Behaglichkeit und der Einsatz von Lehmputz unterstützt das angenehme Raumklima. 

30.08.2019

Zu Tisch im Rheintal

Das Holzhaus mit Lehmkern ist bezogen. Das Familienleben hat Einzug gehalten…

28.02.2024

1. Rang nachhaltige Wohnüberbauung in Holzbauweise und Lehmkerne

raumfindung architekten erzielen beim eingeladenen „Pitch" für eine Wohnüberbauung in Zumikon den 1. Rang. Die Konzeption verpflichtet sich dem nachhaltigen Bauen und geringem CO2-Verbrauch. Die Wohnhäuser sind aus Holzelementbauweise konstruiert und in den prägenden Lehmkernen sind die Wohnküchen und Bäder integriert.

zum Projekt

10.06.2025

Baueingabe nachhaltige Holzwohnbauten Ruchenacher

Die Baueingabe für das Projekt „Gemeinschaftliches Wohnen im Ruchenacher“ in Zumikon ist erfolgt. Die Wohnüberbauung in nachhaltiger Holzbauweise kombiniert die Qualitäten des Einfamilienhauses mit einer verdichteten Bauweise und schafft ein ausgewogenes Verhältnis von Gemeinschaft und Privatsphäre.

zum Projekt